متره و برآورد در صنعت ساخت
بهعنوان یک متخصص در صنعت ساخت، چه یک پیمانکار باتجربه باشید و چه یک پیمانکار تازهکار، تسلط بر جزئیات متره و برآورد برای موفقیت در پروژهها ضروری است.
ادامه مطلب
بهعنوان یک متخصص در صنعت ساخت، چه یک پیمانکار باتجربه باشید و چه یک پیمانکار تازهکار، تسلط بر جزئیات متره و برآورد برای موفقیت در پروژهها ضروری است.
چه مهارتهایی برای نقشهخوانی در پروژههای صنعت ساخت باید داشت؟ یک نقشهخوان ماهر باید به کدام مهارتها مسلطتر باشد تا بتواند خود را از سایر متخصصان متمایز کند؟
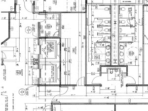
نقشهها ابزاری مهم برای انتقال ایدههای پیچیده در صنعت ساخت هستند؛ CAD و BIM نرمافزارهایی هستند که با کمک آنها میتوان طراحی و اجرای پروژهها را دقیقتر و هماهنگتر انجام داد.
دفتر فنی بخش کلیدی پروژههای عمرانی است که بین طراحی و اجرا هماهنگی ایجاد میکند و مسئول برنامهریزی، کنترل فنی و اجرایی پروژهها میباشد.